ВСКЗ-ДУО 800 - котел автоматический угольный (пеллетный)












Профессиональная консультацияБесплатный расчёт мощности котла и ежемесячных затрат на отопление
Техническая поддержкаСвоевременная техническая и информационная поддержка как в течение гарантийного срока, так и после негоОписание
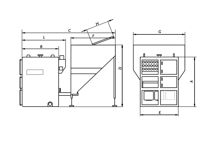
Автоматические промышленные угольные (пеллетные) ВСКЗ-ДУО – котлы с автоматической подачей топлива, оснащены двумя или тремя чугунными горелками (котлы 330-500кВт имеют 2 горелки, а котлы 600-800кВт имеют 3 горелки). Данная конструктивная особенность имеет преимущество, наличие нескольких горелок повышает отказоустойчивость оборудования, так, при отказе одной из горелок, котел все равно продолжает работать хоть и со сниженной мощностью.
Предназначены для сжигания угля и пеллет. Ручная топка отсутствует. Бункер у данных котлов расположен сзади.
Теплообменник котла горизонтальный трехходовой, верхняя часть теплообменника исполнена в виде мультициклона. Трубы в теплообменнике используются цельнотянутые бесшовные толстостенные. Ко всем частям теплообменника обеспечен легкий доступ для чистки.
Предназначен для отопления промышленных объектов, площадью от 1000 до 8000м2.
Оснащен бункером, подающим шнеком, двумя или тремя чугунными горелками, защитой моторредуктора. Опционально золоудаление.
Топливо: Уголь фракции "горох", "семечка", "орех" (25-50 мм); пеллеты.
Особенности: Стандартный диаметр шнека для котлов VSKZ-ДУО - 127мм.
Котел изготовлен из стали: внутренние самые термонагруженные части теплообменника изготовлены из стали толщиной 10мм, остальные части теплообменника изготовлены из стали 6мм или 8мм (в зависимости от мощности). Котел имеет термоизоляционный кожух.
Наличие двух или трех чугунных горелок (в зависимости от мощности). Данная особенность позволяет котлу более эффективно работать на малых мощностях и повышает отказоустойчивость, т.к. горелки могут работать независимо друг от друга и при выходе из строя одной горелки котел продолжит работать со сниженной мощностью.
Теплообменник котла горизонтальный трехходовой, верхняя часть теплообменника исполнена в виде мультициклона. Трубы в теплообменнике используются цельнотянутые бесшовные толстостенные. Ко всем частям теплообменника обеспечен легкий доступ для чистки.
Автоматика: Во время работы мощность котла будет автоматически регулироваться в зависимости от установленных Вами параметров и фактически достигнутой температуры в системе отопления и горячего водоснабжения. Опционально замена пульта управления котлом DM-320 на DM-350 с GSM-модулем управления для дистанционного управления котлом с помощью интернета.
Особенности ВСКЗ-ДУО:
- Наличие двух или трёх чугунных горелок (котлы 330-500кВт имеют 2 горелки, а котлы 600-800кВт имеют 3 горелки);
- Бункер расположен сзади;
- Горизонтальный трёхходовой теплообменник котла, где верхняя часть исполнена в виде мультициклона;
- Трубы в теплообменнике используются цельнотянутые бесшовные толстостенные;
- Ко всем частям теплообменника обеспечен легкий доступ для чистки;
- Золоудаление опциональное;
- Котёл изготовлен из высококачественной стали, толщиной 6, 8 и 10 мм;
- Панель управления с возможностью подключения GSM модуля;
- Возможность установки увеличенного бункера;
- Топливо: уголь фракции до 50мм, пеллеты;
- КПД котлов: до 90%.

| Модель | Мощность | Отапливаемая площадь | Теплообмен | Топливо | Ручная топка | Автоматическое золоудаление | Бункер | Толщина стали | Подача топлива | Горелка |
| ЭКО | 14-200 кВт | 70-2000 м² | Горизонтальный | Уголь, пеллеты | Нет | Возможно | Слева/Справа | ЭКО-ЛАЙТ - 4мм, ЭКО - 6-8мм |
Шнек 102мм/127мм | Ретортная / Квадратная (до 26 кВт) |
| ЛАЙТ | 15-28 кВт | 75-280 м² | Горизонтальный | Уголь, пеллеты | Нет | Нет | Слева/Справа | 4 мм | Шнек 102мм/127мм | Ретортная / Квадратная |
| ЭКО ПЛЮС | 20-50 кВт | 100-500 м² | Горизонтальный и водонаполненные колосники | Уголь, пеллеты, дрова | Да | Возможно | Слева/Справа | ЭКО ПЛЮС-ЛАЙТ - 4мм, ЭКО ПЛЮС - 6мм |
Шнек 102мм/127мм | Ретортная / Квадратная (до 26 кВт) |
| ЛЮКС | 20-50 кВт | 100-500 м² | Горизонтальный | Уголь, пеллеты, дрова | Да | Возможно | Слева/Справа | ЛЮКС-ЛАЙТ - 4мм, ЛЮКС - 6мм |
Шнек 102мм/127мм | Ретортная / Квадратная (до 26 кВт) |
| КОМПАКТ | 20-85 кВт | 100-850 м² | Вертикальный | Уголь, пеллеты | Да | Нет | Слева/Справа | 6 мм | Шнек 127мм | Квадратная |
| ДУО | 270-800 кВт | 1350-8000 м² | Горизонтальный | Уголь (до 50 мм), пеллеты | Нет | Возможно | 2-3 м³, сзади | 6-10 мм | Шнек 127мм | Ретортная, 2-3 горелки |
| ПРОМ | 65-1000 кВт | 325-10.000 м² | Горизонтальный | Уголь до 70 мм | Нет | Возможно | 1-3 м³, сзади | 6 мм | Поршневая | Чугунная плита 40мм, 1-3 горелки |
| СМАРТ | 20-60 кВт | 100-600 м² | Горизонтальный | Уголь, пеллеты, дрова | Да | Возможно | Слева/Справа | 6 мм | Шнек 102мм/127мм | Ретортная / Квадратная (до 26 кВт) |
| ВЕРТИКАЛ | 20-54 кВт | 100-540 м² | Вертикальный и водонаполненные колосники | Уголь, дрова, пеллеты | Да | Нет | Нет | 6 мм | Ручная | Колосники |
| КОМФОРТ | 14-300 кВт | 70-3000 м² | Горизонтальный и водонаполненные колосники | Уголь, дрова, пеллеты | Да | Нет | Нет | КОМФОРТ-ЛАЙТ - 4мм, КОМФОРТ - 6мм |
Ручная | Колосники |
Гарантия
Как я могу вернуть (обменять) товар?
Возврат и обмен товара производится в течение 14 дней после покупки. Товар, не подошедший по цвету или размеру, можно обменять на аналогичный, главное условие - сохранение ярлыков и товарного вида, а также наличие чека. Возврат товара возможен самостоятельно, либо через нашу службу доставки.
Я обнаружил повреждение после приемки товара
Товар ненадлежащего качества подлежит замене в течение 7 дней. При наличии видимых механических повреждений, обнаруженных после приемки товара, Вам необходимо выслать фотографии поврежденного товара на почту office@teplohorosho.ru. Каждый случай тщательно разбирается Службой Контроля Качества.
Как отремонтировать товар если гарантия закончилась?
Если товар сломался после окончания гарантийного срока Вы можете обратиться в нашу службу контроля качества на бесплатную линию 8 (800) 222-35-95. Мы имеем договоренности с сервисными центрами по постгарантийному ремонту.
Что делать, если я потерял гарантийный талон?
Обратитесь в Службу Контроля Качества на бесплатную линию 8 (800) 222-35-95, мы предоставим Вам дубликат, либо поспособствуем ремонту без талона.
Что нужно проверить при получении заказа?
Проверьте соответствие маркировки заказанного товара в чеке и на самой коробке, а также убедитесь в отсутствии видимых механических повреждений коробки или самого товара.
Товар сломался до окончания гарантийного срока
Для ремонта товара вы можете обратиться в сервисный центр, контакты которого указаны в гарантийном талоне. Если проведение гарантийного ремонта в установленный срок невозможно, товар подлежит замене.
Как узнать адрес сервисного центра в моем городе?
К каждому товару прилагается гарантийный талон, в котором указаны сроки действия гарантии и контакты авторизованных сервисных центров производителя. Вы также можете обратиться в нашу службу контроля качества 8 (800) 222-35-95, чтобы узнать адрес ближайшего сервисного центра.
Характеристики
| Диапазон мощности, кВт | 210…800 |
| Производство | Россия |
| Производитель | ВСКЗ |
| Толщина стали, мм | 6 |
| Основное топливо | Уголь, Пеллеты |
| КПД, % | 90 |
| Фракция угля | до 50 мм |
| Вес | 4200 кг |
| Срок автономной работы | до 10 суток |
| Дист. управление | Опция: GSM-модуль |
| Золоудаление автоматическое | Нет |
| Авторозжиг | Нет |
| Отапливаемая площадь | 8000 кв. м. |
| Емкость бункера | 3000 л |
| Гарантия, лет | 3 |
| Срок службы, лет | 10 |
| Максимальная мощность, кВт | 800 |
| Объем воды в котле | 1950 л |
| Максимальное давление, бар | 2 |
| Диаметр дымохода, мм | 326 |
| Диаметр патрубков подключения | G 3 1/2" |
| Тип котла | Автоматический угольно-пеллетный |
| Тип теплообменника | Горизонтальный, Трубчатый, Трехходовой |
| Тип горелки | Ретортная, Чугунная |
| Глубина, мм | 3500 |
| Ширина, мм | 2000 |
| Высота, мм | 2400 |
| Габариты, Г*Ш*В, мм | 3500 × 2000 × 2400 |
| Цвет | зеленый, черный |
| Время автономной работы | до 10 суток |
Отзывы о товаре






















