Светлобор ЭКО 150 - котел пеллетный автоматический










Профессиональная консультацияБесплатный расчёт мощности котла и ежемесячных затрат на отопление
Техническая поддержкаСвоевременная техническая и информационная поддержка как в течение гарантийного срока, так и после негоОписание
Промышленный автоматический пеллетный котёл Светлобор ЭКО 150 — современное решение для автономного отопления производственных помещений, складов, цехов, теплиц и зданий площадью до 1500 м². Работает на любых пеллетах (диаметром 6-8 мм), включая низкосортные серые из горбыля и из лузги подсолнечника, а также на сухой щепе влажностью до 35%. Котёл оснащён автоматической очисткой горелки от шлаков, дымогарных труб при помощи подъёма/опускания спиралей, механизмом удаления золы. Система подачи топлива полностью автоматизирована: встроенный бункер для пеллет, вакуумная пневмоподача из внешнего склада, шнеки, противопожарные шлюзы — всё это позволяет подавать топливо без вмешательства людей долгое время. Возможна самостоятельная работа котла более 1 месяца, за счет дополнительной установки автоматического склада пеллет.
Преимущства котла Светлобор ЭКО
- Автоматизация: подача топлива, розжиг, очистка — всё происходит без постоянного участия человека.
- Гибкость топлива: работает как на пеллетах, так и на щепе влажностью до 35%, что экономически выгодно.
- Высокий КПД: конструкция керамической камеры сгорания и горелки позволила добиться эффективного сжигания и минимальных потерь.
- Экологичность: Экология существенно повысилась, путем введения в базовую конфигурацию мультициклона. Наличие мультициклона гарантируется полное отсутствие искр из трубы.
- Удобство обслуживания: автоматическая система очистки труб и золоудаления снижает необходимость частых ручных чисток.
- Безопасность и надёжность: противопожарные шлюзы, вакуумная подача предотвращают обратную тягу и риск возгораний.
- Экономия места: вертикальная конструкция позволяет монтировать котёл вплотную к стенам.
- Длительный срок службы: керамическая камера, толстостенный теплообменник и надёжные механизмы обеспечивают стабильную работу на годы.
Пеллетный котел Светлобор ЭКО оснащен:
- системой пневмо подачи пеллет, со встроенным бункером на 140 кг;
- системой очистки дымогарных труб;
- системой очистки колосниковой решетки;
- системой золоудаления;
- системой электророзжига;
- системой управления котлом на промышленном котроллере с ПИД регулированием и сенсорным экраном;
- cистемой управления тепловыми контурами;
- системой погодозависимого управления.
Регулировка работы шнека, вентилятора и дымососа с помощью частотных преобразователей.
Управлять котлом можно дистанционно, при помощи sms сообщений (опция).
Конструкция котла Светлобор ЭКО
- Встроенный бункер хранения пеллет и устройство пневмоподачи из внешнего склада.
- Питатель, состоящий из привода, шнека-дозатора, противопожарного шлюза (предотвращает обратную тягу) и шнека подачи пеллет в горелку.
- Горелка, конструкция которой обеспечивает максимальный подогрев первичного воздуха.
- Керамическая камера сгорания с распределительным каналом и соплами подачи вторичного воздуха, обеспечивающая нагрев вторичного воздуха, экранирование и огневой затвор факела.
- Кочерга очистки колосниковой решётки от пенообразных шлаков.
- Устройство очистки дымогарных труб путём подъёма и опускания спиралей.
- Механизм удаления золы.
- Мультициклон.
- Устройство выгрузки золы из мультициклона.
Автоматический склад пеллет
Дополнительно к котлу можно приобрести устройства автоматизации склада пеллет (в стандартную комплектацию котла это не входит).
Котел Светлобор имеет систему вакуумной подачи пеллет, которая позволяет исключить ежедневную ручную загрузку пеллет.
Для полной автоматизации и автономной работы мы предлагаем систему подачи пеллет с внешнего склада. При наличии такой системы котел Светлобор автоматически пополняется с внешнего склада.
Система состоит из пеллетного котла Светлобор (1) и внешнего склада пеллет (2), где установлены заборные устройства («Грибки» 3) и автоматический переключатель (4), соединенные вакуумными шлангами (5).
Гарантия
Как я могу вернуть (обменять) товар?
Возврат и обмен товара производится в течение 14 дней после покупки. Товар, не подошедший по цвету или размеру, можно обменять на аналогичный, главное условие - сохранение ярлыков и товарного вида, а также наличие чека. Возврат товара возможен самостоятельно, либо через нашу службу доставки.
Я обнаружил повреждение после приемки товара
Товар ненадлежащего качества подлежит замене в течение 7 дней. При наличии видимых механических повреждений, обнаруженных после приемки товара, Вам необходимо выслать фотографии поврежденного товара на почту office@teplohorosho.ru. Каждый случай тщательно разбирается Службой Контроля Качества.
Как отремонтировать товар если гарантия закончилась?
Если товар сломался после окончания гарантийного срока Вы можете обратиться в нашу службу контроля качества на бесплатную линию 8 (800) 222-35-95. Мы имеем договоренности с сервисными центрами по постгарантийному ремонту.
Что делать, если я потерял гарантийный талон?
Обратитесь в Службу Контроля Качества на бесплатную линию 8 (800) 222-35-95, мы предоставим Вам дубликат, либо поспособствуем ремонту без талона.
Что нужно проверить при получении заказа?
Проверьте соответствие маркировки заказанного товара в чеке и на самой коробке, а также убедитесь в отсутствии видимых механических повреждений коробки или самого товара.
Товар сломался до окончания гарантийного срока
Для ремонта товара вы можете обратиться в сервисный центр, контакты которого указаны в гарантийном талоне. Если проведение гарантийного ремонта в установленный срок невозможно, товар подлежит замене.
Как узнать адрес сервисного центра в моем городе?
К каждому товару прилагается гарантийный талон, в котором указаны сроки действия гарантии и контакты авторизованных сервисных центров производителя. Вы также можете обратиться в нашу службу контроля качества 8 (800) 222-35-95, чтобы узнать адрес ближайшего сервисного центра.
Характеристики
| Диапазон мощности, кВт | 45...150 |
| Производство | Россия |
| Производитель | Светлобор |
| Толщина стали, мм | 6 |
| Основное топливо | Пеллеты, Щепа |
| КПД, % | 92 |
| Вес | 1500 кг |
| Самоочистка горелки | Да |
| Авторозжиг | Да |
| Дист. управление | Опция: GSM-модуль |
| Отапливаемая площадь | 1500 кв. м. |
| Емкость бункера | 224 л |
| Вместимость (пеллет) | 140 кг |
| Гарантия, лет | 2 |
| Срок службы, лет | 15 |
| Максимальная мощность, кВт | 150 |
| Объем воды в котле | 480 л |
| Максимальное давление, бар | 6 |
| Диаметр дымохода, мм | 200 |
| Диаметр патрубков подключения | G 2" |
| Тип котла | Автоматический пеллетный |
| Тип теплообменника | Вертикальный, Стальной |
| Тип горелки | Ретортная |
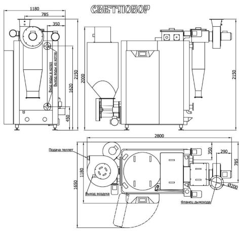
| Глубина, мм | 2750 |
| Ширина, мм | 1180 |
| Высота, мм | 2160 |
| Габариты, Г*Ш*В, мм | 2750 × 1180 × 2160 |
| Цвет | белый, зеленый |
Комплектация
- Котёл Светлобор ЭКО 150 поставляется в собранном виде, готовый к эксплуатации.
- 5 датчиков (температуры подачи, температуры обратки, температуры выходящих газов, окончания пеллет в бункере, заполнения бункера пеллетами).
- Шланг вакуумной подачи 5 метров.
Дополнительная комплектация
- Датчики температуры отопительных контуров.
- Датчик уличной температуры.
- Модуль GSM - дистанционное управление котлом при помощи sms-сообщений.
- Шланг вакуумной подачи до 20 метров.
- Комплект механизации автоматического склада пеллет.
Отзывы о товаре

















