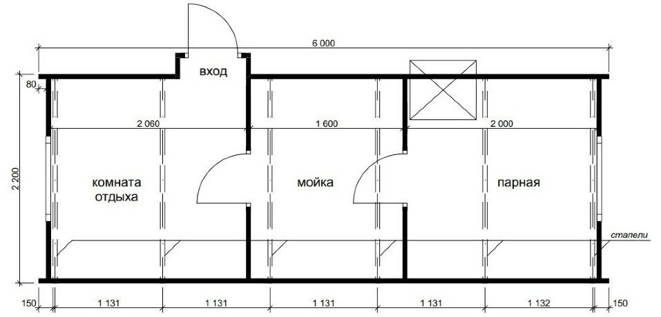
Алтайские мастера - баня-бочка длиной 6 метров и диаметром 2,2 метра









Профессиональная консультацияБесплатный расчёт мощности котла и ежемесячных затрат на отопление
Техническая поддержкаСвоевременная техническая и информационная поддержка как в течение гарантийного срока, так и после негоОписание
Баня-бочка Алтайские мастера - это компактное и мобильное решение настоящей бани у вас на участке. Занимает мало места снаружи, однако приятно удивляет своей вместимостью внутри. При строительстве используется только качественная экологически чистая древесина Алтая камерной сушки. За счет конструктивных особенностей горячий воздух не застаивается и быстро прогревает баню.
Баня-бочка достаточно легкая по сравнению с баней из бруса, поэтому не требует заливки капитального фундамента, а при смене места использования легко перевозится обычным самогрузом.
Комплектация:
- Наборная дверь собственного производства;
- Два окна 40х50 см;
- Печь «Анютка» производства УЗПО в банях до 5 метров. Печь «Фея» в банях до 6 метров. Огнезащита;
- Вся баня внутри обработана антисептиком NEOMID;
- Бак для горячей воды 43 литра, разводка воды 1 кран;
- Электропроводка с розеткой, выключателем и светильником, вентиляция;
- Кровля – мягкая черепица.
Гарантия
Как я могу вернуть (обменять) товар?
Возврат и обмен товара производится в течение 14 дней после покупки. Товар, не подошедший по цвету или размеру, можно обменять на аналогичный, главное условие - сохранение ярлыков и товарного вида, а также наличие чека. Возврат товара возможен самостоятельно, либо через нашу службу доставки.
Я обнаружил повреждение после приемки товара
Товар ненадлежащего качества подлежит замене в течение 7 дней. При наличии видимых механических повреждений, обнаруженных после приемки товара, Вам необходимо выслать фотографии поврежденного товара на почту office@teplohorosho.ru. Каждый случай тщательно разбирается Службой Контроля Качества.
Как отремонтировать товар если гарантия закончилась?
Если товар сломался после окончания гарантийного срока Вы можете обратиться в нашу службу контроля качества на бесплатную линию 8 (800) 222-35-95. Мы имеем договоренности с сервисными центрами по постгарантийному ремонту.
Что делать, если я потерял гарантийный талон?
Обратитесь в Службу Контроля Качества на бесплатную линию 8 (800) 222-35-95, мы предоставим Вам дубликат, либо поспособствуем ремонту без талона.
Что нужно проверить при получении заказа?
Проверьте соответствие маркировки заказанного товара в чеке и на самой коробке, а также убедитесь в отсутствии видимых механических повреждений коробки или самого товара.
Товар сломался до окончания гарантийного срока
Для ремонта товара вы можете обратиться в сервисный центр, контакты которого указаны в гарантийном талоне. Если проведение гарантийного ремонта в установленный срок невозможно, товар подлежит замене.
Как узнать адрес сервисного центра в моем городе?
К каждому товару прилагается гарантийный талон, в котором указаны сроки действия гарантии и контакты авторизованных сервисных центров производителя. Вы также можете обратиться в нашу службу контроля качества 8 (800) 222-35-95, чтобы узнать адрес ближайшего сервисного центра.
Характеристики
| Отделка | Кедр |
| Форма | Круглая |
| Материал печи | Сталь 09Г2С |
| Производитель | Алтайские мастера |
| Производство | Россия |
| Глубина, мм | 6000 |
| Ширина, мм | 2200 |
| Высота, мм | 2200 |
| Габариты, Г*Ш*В, мм | 6000 × 2200 × 2200 |
| Количество помещений | 3 |
| Длина парилки, см | 200 |
Отзывы о товаре














